
Pre-Design Assessment
Before beginning any design work, an initial Assessment must be performed to determine the feasibility of the project. An analysis is created of the property features, existing structure, project scope, zoning and building code requirements, any HOA restrictions, and preliminary construction cost estimate. These are combined with a proposal for Architectural Services to be performed and presented to the Client along with a site walkthrough and discussion by the Architect.

Master Planning
For multi-phase projects, or when the best way to start a project is not clear, a Master Plan is often a very effective way to begin the design process. Together we will look years into the future, to decide the final result of all of the project phases. From there, we can more easily determine the right steps to take to arrive at that intended result and ensure that the design work we pursue at this time is heading in the right direction.
The Master Plan is completed with hand sketches, diagrams, and simple visuals to communicate the design intent without a focus on details. The Master Plan can be completed as its own stand-alone project or coupled with Conceptual Design as the first phase to a complete Architectural Design.

Conceptual Design
The goals of many projects can be accomplished in a number of different ways, so directly comparing several solutions can be an important step to identify which might be the best for you. The Architect will work directly with you to determine what will make the project successful for you, then perform an analysis of your existing space. From there, multiple scenarios for the architectural work will be studied and presented as hand sketches, diagrams, simple visuals, pros/cons lists, and comparisons of likely construction costs.
The Conceptual Design can be completed concurrently with the Master Plan, or as its own phase prior to the start of Architectural Design.

Architectural Design
Architectural Design consists of several meetings where th Architect studies and refines the design, presents the design to the Client, and receives feedback for further refinement. This is the phase where the bulk of the work and time is spent, and the Architectural Design phase can last for several months depending on the scope of the project.
The work in Architectural Design is performed in sophisticated, state-of-the-art 3D computer software, allowing industry-leading levels of coordination between the Architect, consultants, the General Contractor, and the project Client. During this process, Photorealistic Visualizations and 3D Walkthroughs are provided, and the ultimate goal is to produce Permit Drawings for Jurisdictional approval.

Survey and Engineering
A necessary step of any Architectural project is to obtain a current property survey. The coordination of hiring a surveyor, scheduling their visit to the site, and paying for their services is all handled directly by Meadows Architecture, at no extra charge to the Client.
The structural engineering of the design is a requirement that is ultimately incorporated into the Permit Drawings. This engineering is handled by specialists outside of Meadows Architecture, but their coordination and compensation is typically included in the scope of Architectural services, and is not an extra charge to the Client.

Photorealistic Visualizations and 3D Walkthroughs
During the Architectural Design process, the ability to virtually tour your space can be incredibly helpful. Architectural floor plans can never communicate how a space truly feels, and one of the primary benefits of our 3D modeling is the opportunity to confirm that the design meets your needs long before construction begins.
We feel so strongly about the benefits of this offering, we include it as standard during Architectural Design, rather than as a costly add-on like other design firms.

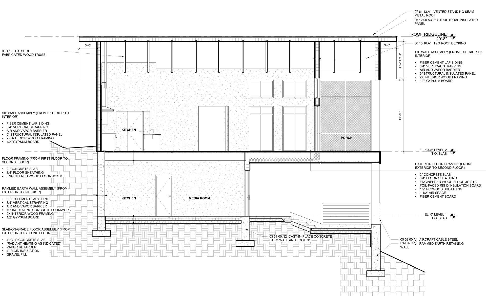
Permit Drawings
The final result of the Architectural Design phase, detail construction drawings are create which document all aspects of the project, are coordinated with engineering and other consultants, and issued to the Jurisdiction for approval and issuance of permit for construction.
These highly technical drawings and specifications serve a portion of your contract with the General Contractor, and their production represents a monumental effort of precision and coordination on the part of the Architect.

Interior Design
Selections related to the interior design of a project represent so much of how we experience our homes and workspaces, so it is critical to ensure that these items are properly coordinated with the overall Architectural design.
The work of an Interior Designer often goes well beyond the scope of Architectural services, so frequently Meadows Architecture will contract with outside experts to ensure an exceptionally high-quality level of service.

Contract Administration
Any type of construction, but particularly renovations and additions, can involve unforseen conditions and complexities, and the design drawings often require further interpretation and clarification to the General Contractor and his subcontractors. During the construction phase, the Architect may spend significant time coordinating with the construction team, responding to requests for information, and conducting site visits to ensure the construction is meeting the design intent.
